Piano del Centro Storico di Cervia, Ravenna/Laboratorio

 

Piano di Recupero delle Case dei Salinari a Cervia, Ravenna

1985-1986

 

1990

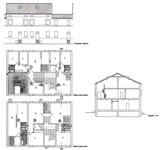
Il Laboratorio di Cervia elabora una visione unitaria e partecipata delle tre aree tematiche classiche del recupero dei centri storici. La prima, la Qualità Urbana, definisce un insieme di proposte - Colore, Vetrine, Insegne, Tende, Pavimentazioni, Arredi - volte a elevare la qualità allo spazio pubblico. La seconda, la Manutenzione Urbana, riattiva un processo di recupero edilizio diffuso specie per le Case dei Salinari, la sequenza di case a schiera seicentesche che delimita il quadrilatero di fondazione (1697-1714) di questa città-fabbrica funzionale alla produzione del sale. La terza, il Progetto, rinnova la struttura dell'organismo urbano riprogettandone i punti di crisi e le aree strategiche. Il “Libretto di Istruzioni per il recupero del centro storico” inviato ai cittadini al termine dell’esperienza sintetizza questo insieme di indicazioni, alcune prescrittive altre orientative, collegate a diverse forme di incentivazione procedurale, fiscale e finanziaria.

Credits

Piano del Centro Storico di Cervia (RA) /Laboratorio (1985-86)

Collaboratori: Umberto Boni, Alessandro Quartieri, Luciano Tellarini

 

Piano di Recupero delle Case dei Salinari a Cervia (RA) (1990)

Collaboratore: Anna Bovoli

© 2020 Lamberto Rossi Associati, via Telesio 17, 20145, Milano (MI), Italy - Diritti Riservati

Sito web creato da Giulia Margherita Bernardi (giuliam.bernardi@gmail.com)

Piano del Centro Storico di Cervia, Ravenna/Laboratorio

 

 

Piano di Recupero delle Case dei Salinari a Cervia (RA)

1985-1986

 

 

1990

© 2020 Lamberto Rossi Associati - Diritti Riservati

Sito web creato da Giulia Margherita Bernardi