Laboratorio e Showroom Edilpiù a Lugo, Ravenna

E Ampliamento

1993

2000

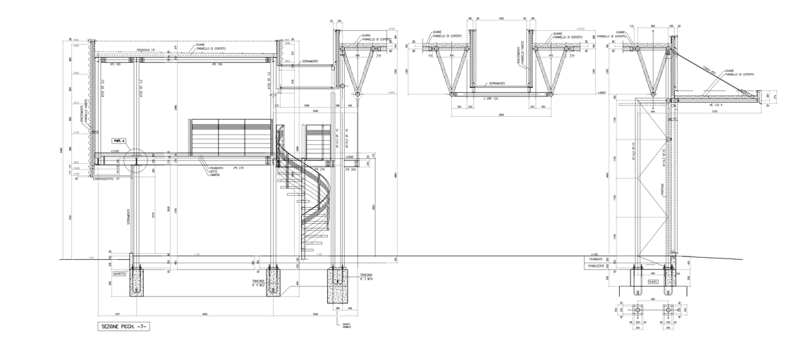
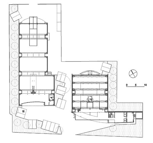
Pensato per una percezione in movimento - dalla macchina - l’edificio appare come un oggetto metallico, quasi astratto, in sintonia con il lungo serpente di lamiere che corre ininterrotto, di giorno e di notte, lungo la San Vitale, dorsale e motore di tutta la Romagna. E’ un grande guardrail convesso. Nella nebbia, abituale e ostile compagna di viaggio in queste zone, acquista un aspetto rassicurante e accogliente grazie ai grandi prismi vetrati che ne scandiscono il ritmo. Il complesso è formato da due corpi distinti, volumetricamente autonomi, con pareti ventilate in lamiere ondulate di alluminio, giustapposti all’unica vera preesistenza: un magnifico pioppo secolare.

Credits

Con: Giovanni Grandi (strutture)

 

Collaboratori: Nicoletta De Benedetti, Sergio Iaquinta

© 2020 Lamberto Rossi Associati, via Telesio 17, 20145, Milano (MI), Italy - Diritti Riservati

Sito web creato da Giulia Margherita Bernardi (giuliam.bernardi@gmail.com)

© 2020 Lamberto Rossi Associati - Diritti Riservati

Sito web creato da Giulia Margherita Bernardi