Museo Civico e residenze ex-ospedale S. Rocco a Fusignano, Ravenna

1995- 2002

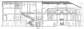
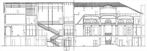
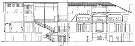
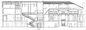
L'ospedale S. Rocco è un'antica e amata istituzione civile, legata alla famiglia di Arcangelo Corelli che qui nacque. Ha subito notevoli rimaneggiamenti e la forma attuale deriva dalla ricostruzione post-bellica: un incastro di tre parti di epoche differenti con imponenti facciate sui tre lati opposti, quasi un gioco di scatole cinesi. Il fronte sul corso è stato ricostruito in forme eclettiche sul sito dell'antica chiesa; una seconda parte ha inglobato l'originaria struttura settecentesca con il portico aperto sul giardino, antica porta della città per i forestieri che arrivavano da Lugo; una terza parte del 1865 - notevole esempio di "Magnificenza civile" - ha forme tardo-neoclassiche. Persa la sua funzione originaria, l'ospedale è stato riconvertito in Centro Culturale con spazi espositivi che accolgono, fra l’altro, le opere dello scultore fusignanese Raoul Vistoli, il museo delle ceramiche votive, oltre a mostre temporanee. Il progetto valorizza le peculiarità delle tre parti dell’edificio e i diversi assi di simmetria: la facciata neoclassica, restaurata con le cromie originali, segna il nuovo ingresso agli spazi espositivi mentre, sull’altro fronte, la riapertura del portico settecentesco lega l’edificio al giardino. Una nuova scala metallica sospesa, illuminata da due lucernari zenitali e un ascensore vetrato completano il recupero della parte settecentesca consentendo usi differenziati nel tempo.

Credits

1^ Fase(1995)

Strutture e impianti: Pio Farina, Alfeo Grandi

Collaboratori: Nicoletta De Benedetti, Sergio Iaquinta, Romeo Menarini

 

2^ Fase (2002)

Strutture e impianti: Pio Farina, Angelo Cacchi

Collaboratori: Enrico Farina, Maddalena Dossi, Romeo Menarini, Michele Stillittano

© 2020 Lamberto Rossi Associati, via Telesio 17, 20145, Milano (MI), Italy - Diritti Riservati

Sito web creato da Giulia Margherita Bernardi (giuliam.bernardi@gmail.com)

© 2020 Lamberto Rossi Associati - Diritti Riservati

Sito web creato da Giulia Margherita Bernardi