Ampliamento Scuola Materna di Fusignano, Ravenna

2000-2001

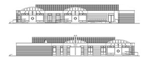
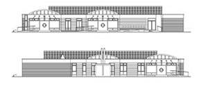
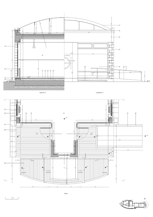
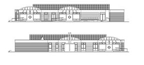
L’ampliamento rinnova la metafora originaria introducendo un secondo cerchio - la comunità che si allarga per ospitare nuovi arrivati - che diviene il nuovo elemento ordinatore entro cui trovano posto altre due sezioni. Il corso si arricchisce di un nuovo tratto e di una “piazza”.

Esposizione, luce, rapporto interno/esterno, fanno dell’edificio una sorta di meridiana solare capace di scandire il passaggio delle stagioni, il ritmo della giornata nel gioco continuo di luci e di ombre.

Credits

Collaboratori: Enrico Farina, Sergio Iaquinta, Romeo Menarini

 

Strutture e impianti: Pio Farina

© 2020 Lamberto Rossi Associati, via Telesio 17, 20145, Milano (MI), Italy - Diritti Riservati

Sito web creato da Giulia Margherita Bernardi (giuliam.bernardi@gmail.com)

© 2020 Lamberto Rossi Associati - Diritti Riservati

Sito web creato da Giulia Margherita Bernardi