Riconversione area industriale ad Azzano Decimo (PN)

2012- ....

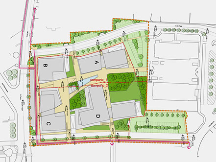
Il master plan interessa un’area privata di 1,70 ha, occupata da impianti industriali dismessi al centro di Azzano Decimo, città dell’interland di Pordenone passata di recente da 12.880 abitanti (2001) ai 15.700 attuali. Il PRG assegna a questo ambito, adiacente al centro amministrativo e commerciale della città, un ruolo strategico per la riqualificazione dell’intero organismo urbano prevedendo una riconversione a residenziale, commerciale e terziario capace di generare un’estensione dell’effetto “città”.

E’ questo l’assunto di progetto: prefigurare un cuore centrale della città che tenga conto del nuovo ruolo territoriale di Azzano. L’obiettivo urbanistico è, dunque, quello di far sì che questa area baricentrica svolga una doppia funzione: “ponte” tra territorio e centro e “porta” alle aree centrali. Si propone di ampliare il centro di Azzano - un sistema tripolare: Duomo, Comune, Monumento ai Caduti - in un sistema pentapolare con due nuovi poli condensatori di valori ambientali, di incontro, commerciali.

La proposta planivolumetrica concentra la volumetria in quattro corpi di fabbrica a differente morfologia facendo di quest’area un elemento di connessione nord-sud ed est-ovest tra le aree centrali e le espansioni contemporanee.Al centro, cuore del sistema, è la nuova piazza aperta da varchi e gallerie in sottoportico.

I parcheggi organizzati “ad arcipelago” mantengono il traffico veicolare sul perimetro realizzando una corona pressoché continua, non impattante e integrata nel sistema del verde. Anche il mix funzionale - 75% residenziale, 15% commerciale e artigianato di servizio, 10% terziario - è concepito per accentuare una condizione di plurifunzionalità.Riprendendo la suggestione dell’antico nome della città - “Ad Sanum” - “Salute”, Sostenibilità, Qualità Alimentare, Benessere, sono i temi guida dell’intervento sia per il residenziale sia per il terziario e il commerciale.

Credits

In ATI: Lamberto Rossi Associati (Capogruppo), arch. Luciana Rosa Rosset, Cooprogetti SCRL

© 2020 Lamberto Rossi Associati, via Telesio 17, 20145, Milano (MI), Italy - Diritti Riservati

Sito web creato da Giulia Margherita Bernardi (giuliam.bernardi@gmail.com)

© 2020 Lamberto Rossi Associati - Diritti Riservati

Sito web creato da Giulia Margherita Bernardi